Retail Property For Sale - Surrey, GU6 7AA - 542 sqft

Our website uses cookies. By continuing to use this website you accept the use of these cookies. as detailed in our privacy policy.

5 Ewhurst Road, Cranleigh, Surrey, GU6 7AA

Retail 542 Sq ft To Let/For Sale Leasehold - £12,500 pax Freehold - £170,000

Location

Located on the Southern end of Ewhurst Road this property experiences high amounts of road traffic and passing trade. Neighboring stores consist of predominantly local traders including Redford barbers, Surrey Hills Bookshop, WeyAhead beauticians, Upfold construction and Moooh ice cream.

 

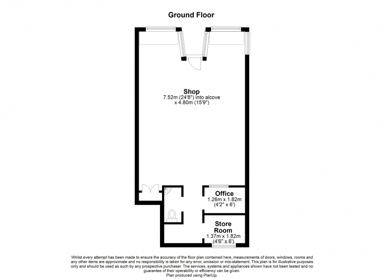
Description

 

The ground floor Class E retail unit comprises of an open plan trading area to the front with separated storage and office space to the rear with W/C facilities. The shop is fitted with a wood laminate floor and is LED spotlit.

The flat above has been sold on a long leasehold with a remaining 63 years left on the leasehold with a stepped ground rent every 33 years from its commencement in 1987

Accommodation

AVAILABLE SQ FT SQ M
Total 542 50.4

 

Terms  

New Lease terms to be agreed.

 

Proposals 

Leasehold value - £12,500 pax

Freehold value - £170,000

Rates

 

Rateable Value: £11,750

 

Rates Payable (22/23): £5,738.50

 

Small Business Rates is available to eligible occupiers

 

EPC

D - 79

ANTI MONEY LAUNDERING POLICY

In accordance with Anti Money Laundering Regulations, the successful purchaser will be required to provide two forms of identification and confirmation of the source of funding.

Legal Costs

 

Each party to bear their own legal costs

 

 

Viewing

Strictly by appointment with the sole agents

Charlie  Williams

Charlie Williams
MRICS, Senior Surveyor
07456899972
charlie@owenisherwood.com

Alex  Bellion

Alex Bellion
Director
07971 756068
alex@owenisherwood.com

LET

84 The Street, Tongham, Surrey, GU10 1AA

  • Retail
  • 659 Sq ft
  • For Sale
  • £310,000 (no VAT)

LET

53 Church Road, Aldershot, Hampshire, GU11 3PR

  • Retail
  • 255 Sq ft
  • To Let/For Sale
  • £6,500 p.a. / £74,950
X
I agree with the website terms of use